Įmontuojama indukcinė kaitlentė su integruotu gartraukiu Bosch PVS811B16E

Prekės kodas: PVS811B16E

Turimas kiekis: 10

€1,30238 su PVM
Turite klausimų apie šią prekę? Klauskite
Gamintojas: BOSCH

Kaitlentė ir gartraukis – viename.

Integruotame ventiliavimo modulyje dera geriausios mūsų indukcinių kaitlenčių ir gartraukių savybės. Jis integruotas kaitlentės paviršiuje, todėl gaminamo patiekalo kvapus ir garus ištraukia jų susidarymo vietoje. Jums neprireiks atskiro gartraukio, todėl viršuje galėsite įrengti spinteles arba nekliudomai apžvelgti virtuvę. 

Viskas piršto palietimu

Su TouchSelect valdymo skydeliu galite lengvai nustatyti pageidaujamą gaminimo zoną ir pasirinkti reikalingą galios lygį. 

Kaitlentė tikriems profesionalams.

Jei prireikia daugiau vietos ilgesniam indui, pvz., kepimo indui, mygtuku „CombiZone“ galite sujungti dvi atskiras gaminimo zonas į vieną didelę. 

Frameless design.

Frameless Design: kaitlentės paviršius šiek tiek paaukštintas, kad maisto gaminimo vieta būtų atskirta nuo stalviršio. 

Techniniai duomenys:

Gaminimo zonų lankstumas

  • CombiZone daugiafunkcė zona: norėdami gaminti didesniuose induose apjunkite dvi įprastas gaminimo zonas į vieną didelį kaitinamąjį paviršių.
  • Priekinė kairioji gaminimo zona: 210, 190, 2.2 (maks. galia 3.7)
  • Galinė kairioji gaminimo zona: 190, 210, 2.2 (maks. galia 3.7)
  • Galinė dešinioji gaminimo zona: 180 , 1.8 (maks. galia 3.1)
  • Priekinė dešinioji gaminimo zona: 210, 2.2 (maks. galia 3.7)

Naudojimo patogumas

  • TouchSelect funkcija: reguliuokite galios lygį integruotais +/- jutikliniais mygtukais.
  • 17 galingumo pakopų: tiksliai reguliuokite kaitinimą pasirinkdami iš 17 galios lygių (9 pagrindinių ir 8 tarpinių).
  • Išjungimo laikmatis: pasibaigus nustatytam gaminimo laikui išjungiama gaminimo zona (pvz., išvirus kiaušiniams).
  • Atgalinis laikmatis: pasibaigus nustatytam gaminimo laikui pasigirsta signalas (pvz., išvirus makaronams).

Laiko taupymas ir efektyvumas

  • Visų kaitviečių PowerBoost funkcija: vanduo užverdamas kur kas greičiau 50 % padidinus galią, palyginti su standartiniu lygiu.
  • QuickStart funkcija: įjungus šią funkciją kaitlentė automatiškai pasirenka gaminimo zoną, ant kurios yra gaminimo indas (padėtas kaitlentei esant išjungtai).
  • ReStart funkcija: netyčia išjungus, atkuriamos visos ankstesnės nuostatos, kai kaitlentė vėl įjungiama per 4 sekundes.
  • Galite greitai išjungti gaminimo zoną vienu ilgesniu palietimu.

Dizainas

  • ComfortProfil

Sauga

  • Dvejopa likusios šilumos indikacija: parodoma, kurios gaminimo zonos dar karštos ar šiltos.
  • Apsauga nuo vaikų veiksmų: apsaugo nuo netyčinio kaitlentės įjungimo.
  • Main Switch: vieno mygtuko palietimu išjungiamos visos gaminimo zonos.
  • Apsauginis išsijungimas: saugumo dėlei kaitinimas sustabdomas praėjus iš anksto nustatytam laikui be jokių papildomų veiksmų (nuostata gali būti reguliuojama).

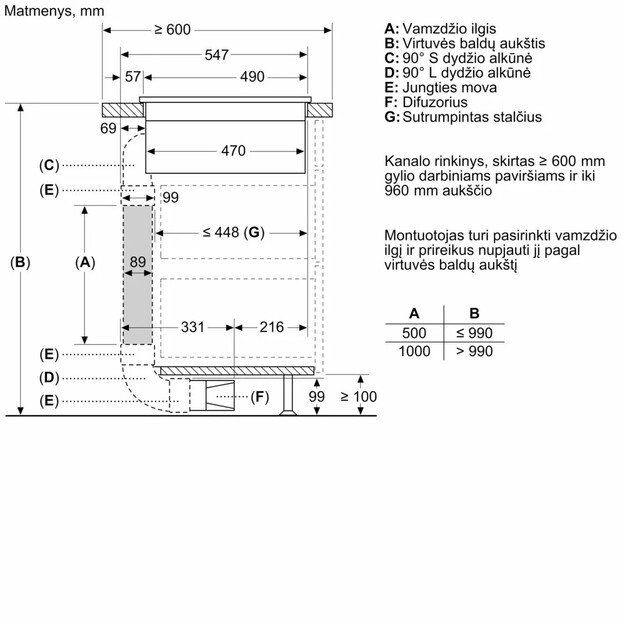
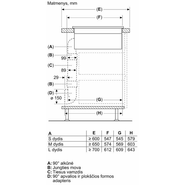
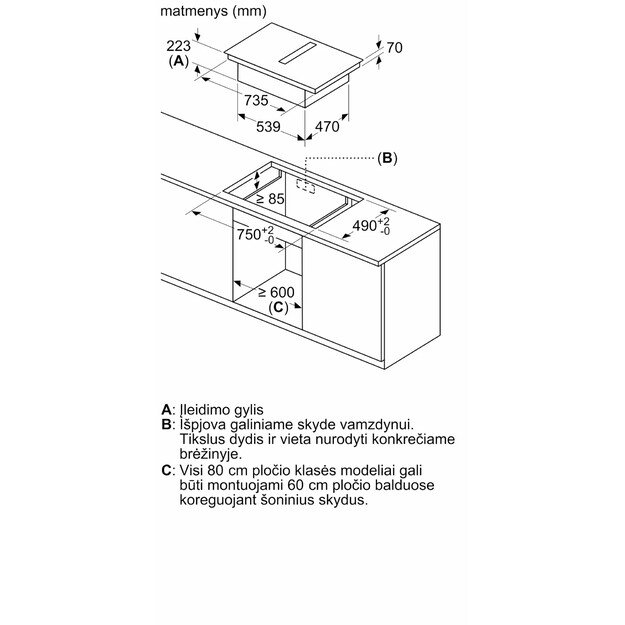
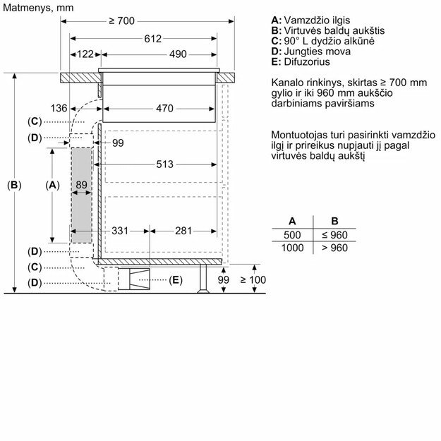
Įrengimas

  • Gaminio matmenys (A x P x G mm): 223 x 802 x 522
  • Įrengti reikalingas angos dydis (A x P x G mm): 223 x 750 x (490–490)
  • Minimalus darbastalio storis: 16
  • Apkrova prijungus: 7400 W
  • PowerManagement funkcija: prireikus apribojama maksimali galia (atsižvelgiant į elektros instaliacijos apsauginius saugiklius).

Priedai

  • Clean Air Plus kvapų filtras, įtrauktas nekanalinės recirkuliacijos slankiklis įeina į komplektą
  • Galima montuoti į 60 cm pastatomą virtuvės spintelę.  

Energijos efektyvumo etiketė:


Daugiau informacijos gamintojo puslapyje

Apie gamintoją:

BOSCH yra pasaulyje pirmaujanti buitinės technikos gamintoja. Įmonės strateginis tikslas yra kurti sprendimus skaitmenizuotam gyvenimui, ir gerinti gyvenimo kokybę visame pasaulyje savo gaminiais ir paslaugomis, kurios yra inovatyvios ir kelia entuziazmą. Kompanijos ateities augimo pagrindas yra jos stiprybė kuriant inovacijas. 

Parašyti atsiliepimą