Kaitlentė su gartraukiu Bosh PVQ811H26E

Prekės kodas: PVQ811H26E

Turimas kiekis: 3

€1,33354 su PVM
Turite klausimų apie šią prekę? Klauskite
Gamintojas: BOSCH

Kaitlentė ir gartraukis – viename.

Integruotame ventiliavimo modulyje dera geriausios mūsų indukcinių kaitlenčių ir gartraukių savybės. Jis integruotas kaitlentės paviršiuje, todėl gaminamo patiekalo kvapus ir garus ištraukia jų susidarymo vietoje. Jums neprireiks atskiro gartraukio, todėl viršuje galėsite įrengti spinteles arba nekliudomai apžvelgti virtuvę. 

Lengvas viryklės valdymas.

Ar kartais pasimetate tarp savo kaitlentės nustatymų? Dėl intuityvaus valdymo skydelio ir papildomos šviečiančios linijos, „Direct Select“ leidžia pasirinkti kaitvietes ir nustatyti reikiamus kaitinimo lygius – tiesiogiai, greitai ir lengvai. 

Dabar lengva maistą gaminti dideliuose puoduose ir prikaistuviuose.

Norite ant inducinės kaitlentės naudoti didelį puodą arba kepimo padėklą? Naudodami funkciją „CombiZone“ galėsite sujungti dvi apskritas gaminimo sritis. Tada turėsite daugiau vietos patogiai pastatyti didelius gaminimo indus. 

Pažangesnė ventiliacija ties garų susidarymo vietos.

Gartraukio įjungti nereikia. Dabar kaitlentė jį įjungia už jus. Suveikus funkcijai „AutoOn“, vetiliacinės angos pradeda veikti vos jums įjungus kaitlentę. Ventiliacinių angų veikimą taip pat galite įjungti ir patys. Dabar nebereikia vargti norint, kad oras virtuvėje būtų grynas ir švarus. 

Techniniai duomenys:

Bendras

  • Pagrindinė produkto spalva Juodas
  • Plotis 80 cm
  • Dimensions of the heating elements 1 x (38,0 x 21,0 cm), 1 x (38,0 x 21,0 cm)
  • Šildymo elementų galia (rodomos didžiausios vertės, priklausomai nuo dujų tipo) 4 x 2.5 (3.7) kW
  • Rėmo tipas Be rėmo
  • Kaitrinių kaitviečių 0
  • Indukcinių kaitviečių skaičius 4
  • Kaitinimas su booster Viskas
  • Reguliavimo ir aliarmo tipas priekyje
  • Maks. oro ištraukimas 500 m³/h
  • Oro ištraukimas intensyviu režimu 622 m³/h
  • Maks. oro recirkuliacija 487 m³/h
  • Recirkuliacinis oro ištraukimas intensyviu režimu 595.0 m³/h
  • Garso stiprumas esant maksimaliam greičiui (2010/30/EC) 69 dB
  • Garso stiprumo padidinimas (2010/30/EC) 74 dB
  • Triukšmo lygis 69
  • Energy consumption of hob 185.0 Wh/kg
  • Pridedami priedai 1 x „Clean Air Plus“ kvapų filtras

Dydis ir svoris

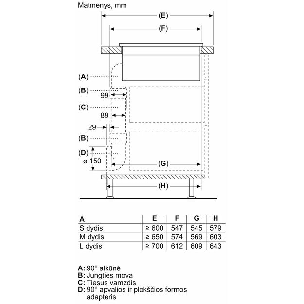
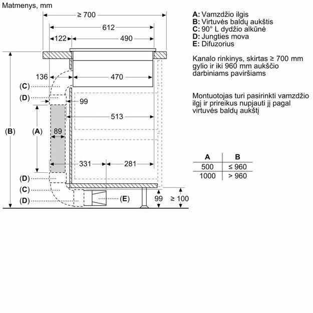
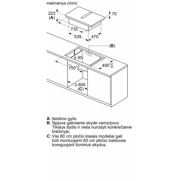
  • Gaminio išmatavimai 223 x 802 x 522 mm
  • Minimalus montavimo nišos aukštis 490 mm
  • Maksimalus montavimo nišos aukštis 490 mm
  • Mažiausias montavimo angos plotis 750 mm
  • Didžiausias montavimo angos plotis 750 mm
  • Montavimo gylis 223 mm
  • Appliance height above the worktop 6.0 mm 

Techninės specifikacijos

  • Galia 7400 W
  • Įtampa 220-240/380-415 V
  • Elektros laidos ilgis 110.0 cm
  • Kištuko tipas Nėra kištuko (elektros pajungimas atliekamas elektriko)

Patogi kaitlentė

  • Pakopinis kaitviečių valdymas 17 galingumo pakopų
  • Maisto ruošimo vietos lankstumas 2 kombinuotos zonos
  • powerBoost Taip.
  • fryingSensor Plus Taip.
  • Infrared cooking sensor Ne
  • Perfect cook_READY Ne
  • Powermove Ne
  • Automatic Setting Transfer Ne
  • Quick Start Taip.
  • Šilumos palaikymo funkcija Ne
  • Laikmatis Taip

Patogus gartraukis

  • EcoSilence Drive - efektyvu ir ypač tylu Taip.
  • Intensyvus režimas Taip.
  • Atidėtas išsijungimas 30R_12E min
  • Greičių lygių skaičius 9-stage + 2 intensive

Ryšys

  • Home Connect Taip.
  • en: Power consumption standby/display off 0.3 W
  • Power consumption standby/network: Please check the user manual for how to switch off the WiFi module. 2.0 W
  • en: Time auto-standby/displ. off 20.0 min
  • en: Time auto-standby/network 20.0 min

Saugumas

  • Likusios šilumo indikatorius Askiras
  • Saugos įtaisas childproof lock, pause function, Power management function, pan recognition, Safety time-switch-off, childproof lock, pause function, Power management function, pan recognition, Safety time-switch-off, childproof lock, pause function, Power management function, pan recognition, Safety time-switch-off, childproof lock, pause function, Power management function, pan recognition, Safety time-switch-off, childproof lock, pause function, Power management function, pan recognition, Safety time-switch-off 

Energijos efektyvumo etiketė:


Daugiau informacijos gamintojo puslapyje

Apie gamintoją:

BOSCH yra pasaulyje pirmaujanti buitinės technikos gamintoja. Įmonės strateginis tikslas yra kurti sprendimus skaitmenizuotam gyvenimui, ir gerinti gyvenimo kokybę visame pasaulyje savo gaminiais ir paslaugomis, kurios yra inovatyvios ir kelia entuziazmą. Kompanijos ateities augimo pagrindas yra jos stiprybė kuriant inovacijas. 

Parašyti atsiliepimą